53 Boyce Street
Glebe
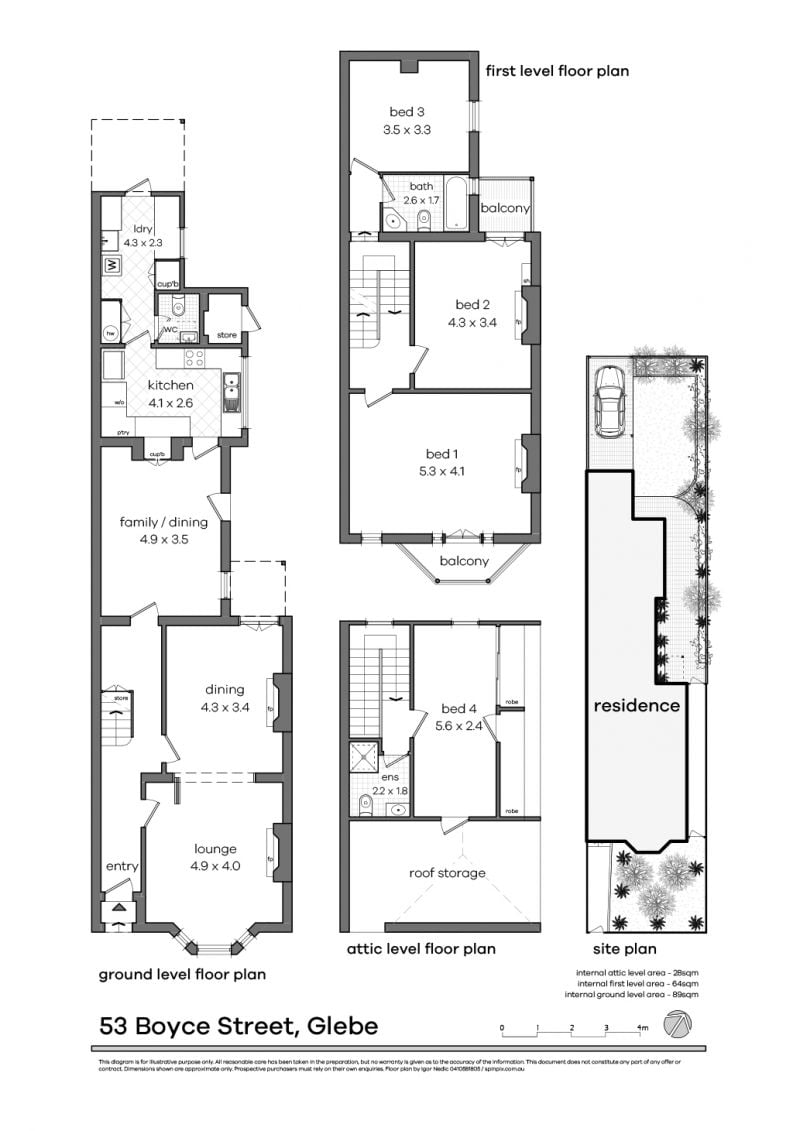
4 bed2 bath1 parking
Rarely does an opportunity arise that presents a lifestyle of such prime position and possibility. Part of a handsome row of traditional freestanding homes, this grand period residence offers a truly exceptional chance to acquire a substantial tri-level home in Glebes premier Toxteth Estate. It is presented in great condition and is ready to be lived in straight away. With many character details throughout and it has lots of future potential to add value through a creative update or renovation. It represents a prized prospect where innovative design and good taste will add tremendous appeal and make a superb family residence. Built circa 1880 and offered for sale for the first time in nearly 40 years. It is located in a highly popular lifestyle location that is within strolling distance to foreshore walks, the light rail and harbourside parklands.
Features:
- Bright interiors feature a spacious three-level floorplan
- An ideal northerly rear aspect and good natural light
- Generous formal rooms plus a separate casual dining area
- Secure parking space with access from the rear lane
- Sheltered rear patio plus a private grassed garden
- Four bedrooms include a large main with traditional verandah
- Upper level bedroom and bathroom plus large roof storage
- Lots of original details with marble fireplaces and high ceilings
- Easy strolling distance to Glebes buzzing cafe and restaurant strip
Water Rates: $295 per quarter
Council Rates: $471 per quarter
Figures are approximate only
Features:
- Bright interiors feature a spacious three-level floorplan
- An ideal northerly rear aspect and good natural light
- Generous formal rooms plus a separate casual dining area
- Secure parking space with access from the rear lane
- Sheltered rear patio plus a private grassed garden
- Four bedrooms include a large main with traditional verandah
- Upper level bedroom and bathroom plus large roof storage
- Lots of original details with marble fireplaces and high ceilings
- Easy strolling distance to Glebes buzzing cafe and restaurant strip
Water Rates: $295 per quarter
Council Rates: $471 per quarter
Figures are approximate only
Features
- • Close to Schools
- • Close to Shops
- • Close to Transport
- • Fireplace(s)
- • Garden
- • Polished Timber Floor
- • Separate Dining